Jackson Square Office
Jackson Square, San Francisco
/
Completed
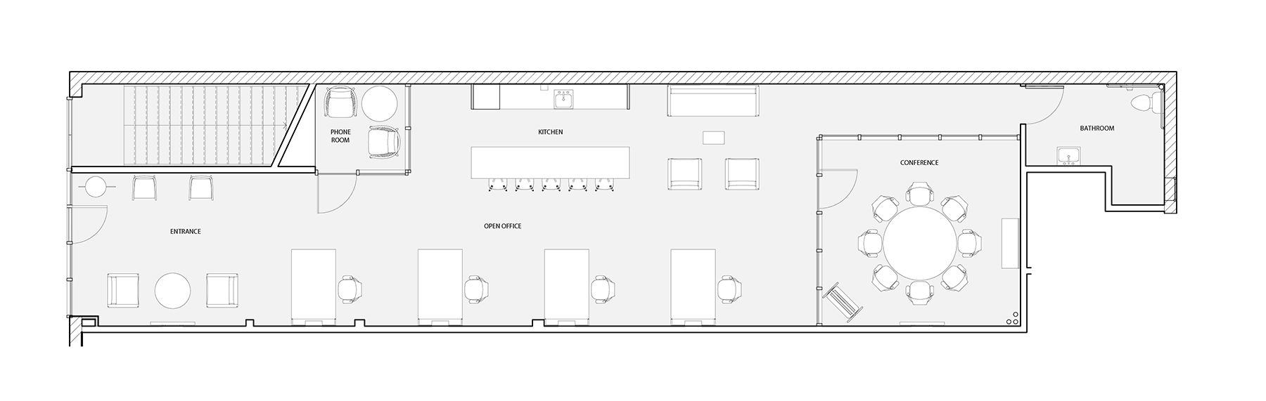
Located in San Francisco’s historic Jackson Square, this office transforms a brick-and-timber warehouse space into a contemporary workspace for a venture capital firm. The design preserves the neighborhood’s storied character—exposed masonry, heavy timber, and steel—while introducing refined modern interventions. A custom marble kitchen, glass-enclosed conference rooms, and live-edge workstations create a balance of craft and sophistication. The result is a warm, tactile, highly functional environment that bridges the district’s Gold Rush heritage with the innovation-driven culture of its new occupants.








