Korean Art Museum
Seoul, Korea
/
Proposal
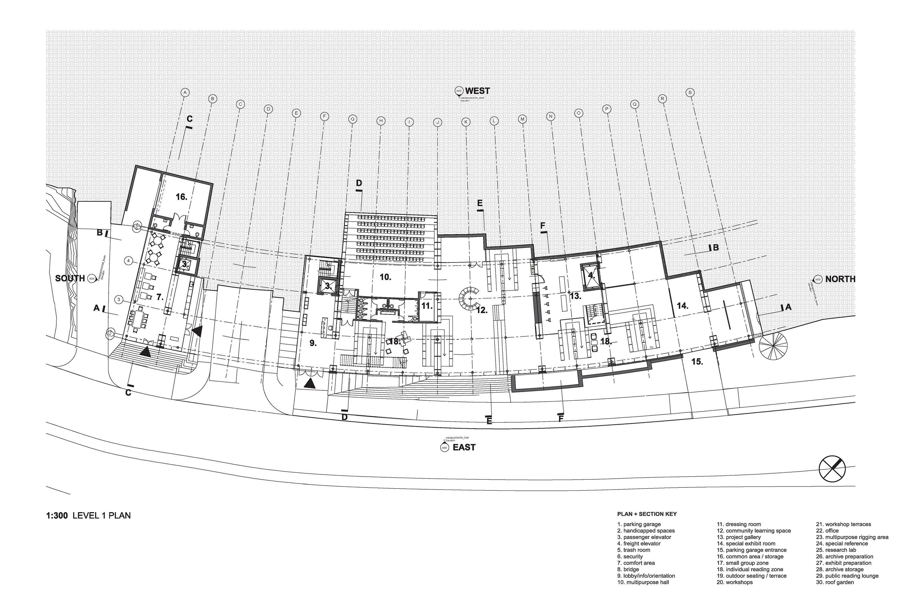
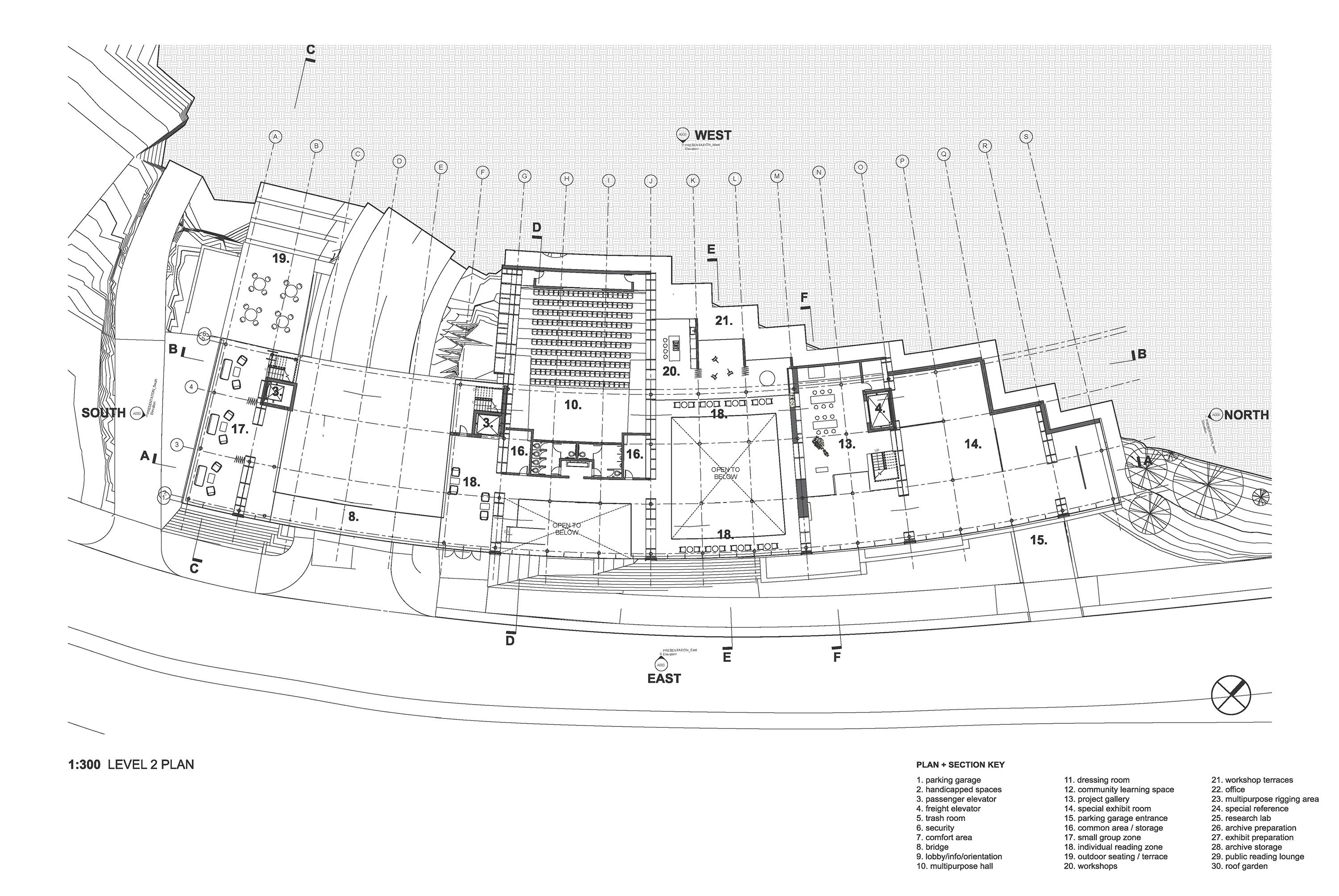
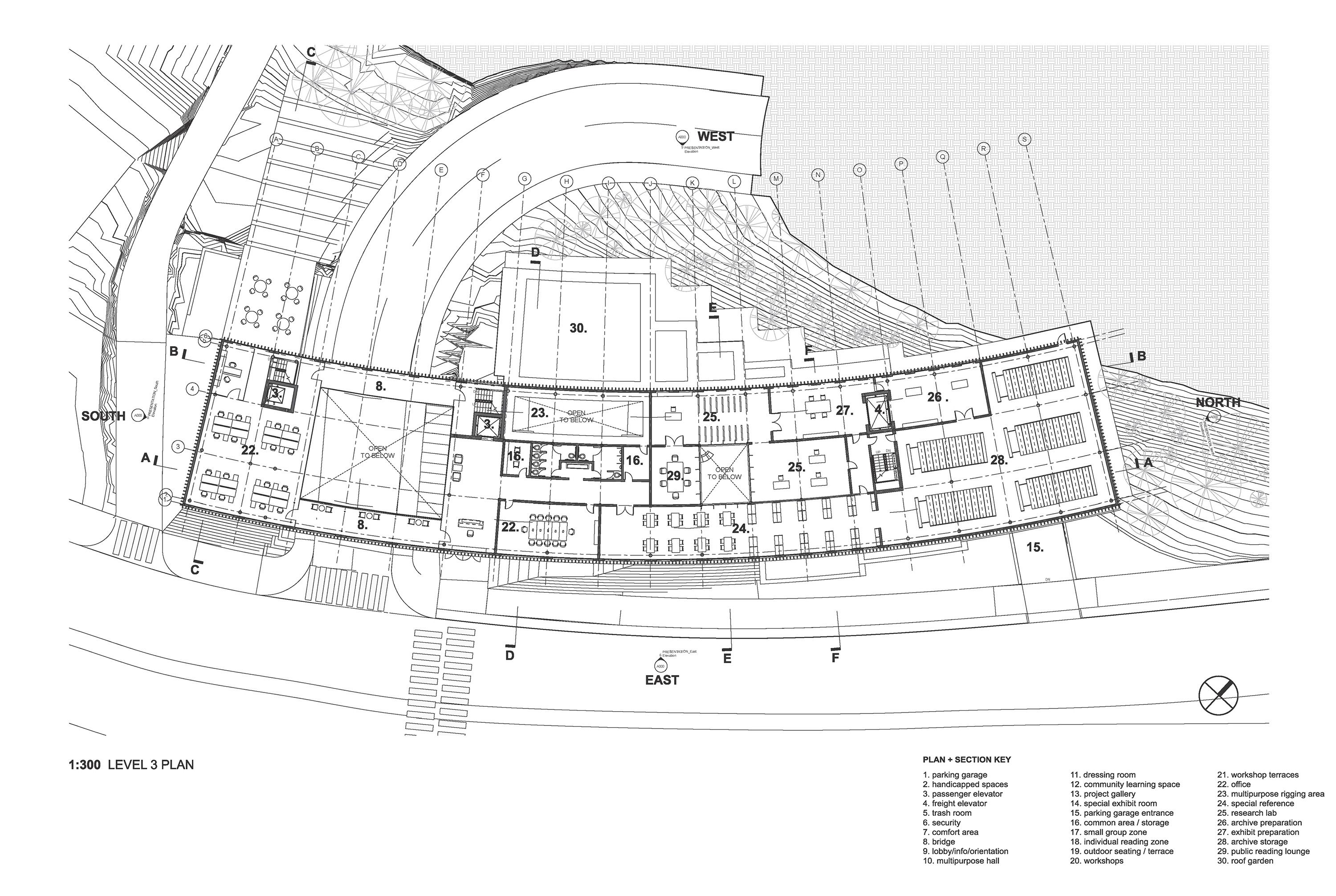
This proposal for a Korean art research complex organizes the building around a series of monumental, inhabitable bookcases that act as walls, galleries, and archives all at once. Instead of hiding collections in back rooms, the building brings art, books, and artifacts into full public view—turning circulation spaces into open archives. A transparent, glassy ground floor creates a welcoming civic presence and seamless connection to the street, while the upper level houses research and administrative spaces within a more solid, monolithic volume. The result is a hybrid between library, museum, and workspace—an architecture of display, discovery, and cultural memory.










